Alt-Mariendorf: Frisch renoviertes 1‑Zimmer‑Apartment mit SW‑Balkon und Blick ins Grüne

12107 Berlin / Mariendorf, Etagenwohnung zum Kauf

reserviert

Dieses Objekt ist zur Zeit leider nicht verfügbar.

Objektdaten

  • Objekt ID
    76540
  • Objekttypen
    Etagenwohnung, Wohnung
  • Adresse
    (Mariendorf (Ortsteil))
    12107 Berlin / Mariendorf
  • Etage
    3
  • Etagen im Haus
    4
  • Wohnfläche ca.
    36 m²
  • Nutzfläche ca.
    5 m²
  • Balkon-/Terrassen­fläche ca.
    2 m²
  • Zimmer
    1
  • Schlafzimmer
    1
  • Badezimmer
    1
  • Balkone/Terrassen
    2 m²
  • Wesentlicher Energieträger
    Öl
  • Baujahr
    1957
  • Zustand
    gepflegt
  • Stellplätze gesamt
    1
  • Hausgeld
    200,80 EUR
  • Kaufpreis
    149.000 EUR
  • Käufer­provision
    3,57 % inkl. MwSt.

Ausstattung / Merkmale

  • Außenstellplatz
  • Einbauküche
  • Fliesenboden
  • Laminatboden

Energieausweis

  • Energieausweistyp
    Verbrauchs­ausweis
  • Ausstellungsdatum
    ab dem 1.5.2014
  • Gültig bis
    03.07.2028
  • Gebäudeart
    Wohngebäude
  • Baujahr lt. Energieausweis
    1957
  • Primärenergieträger
    Öl
  • Endenergie­verbrauch
    162,00 kWh/(m²·a)
  • Energie­effizienz­klasse
    F
0 25 50 75 100 125 150 175 200 225 250+ H G F E D C B A A+ H G F E D C B A A+ Endenergieverbrauch 162,00 kWh/(m²·a)

Objekt­beschreibung

Beschreibung

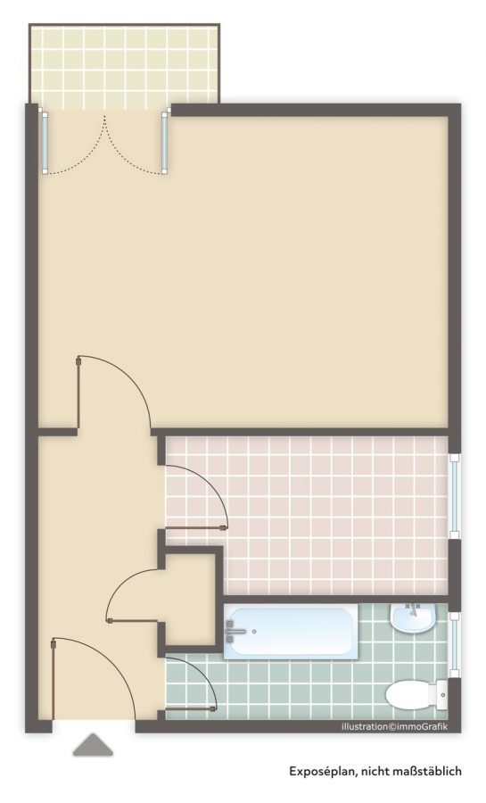
Dieses gepflegte 1‑Zimmer‑Apartment besticht durch eine optimale Raumaufteilung und eine Wohnfläche von ca. 36 m². Es liegt im 3. Obergeschoss eines Mehrfamilienhauses aus dem Jahr 1957 und bietet eine angenehme, ruhige Wohnatmosphäre.

Der großzügige Wohnbereich wurde soeben umfassend renoviert: neuer Bodenbelag, frisch gestrichene Wände, sorgfältig ausgebesserte Oberflächen. Bodentiefe Fenster lassen viel Tageslicht hinein und schaffen ein freundliches Ambiente. Vom Wohnraum gelangen Sie auf den nach Südwesten ausgerichteten Balkon mit schönem Blick in den grünen, gepflegten Innenhof mit altem Baumbestand – eine kleine Oase zum Entspannen.

Die helle, klassische Einbauküche ist funktional gestaltet, bietet viel Stauraum und verfügt über alle wichtigen Elektrogeräte. Das Badezimmer präsentiert sich in freundlichen, hellen Fliesen und ist mit einer Badewanne ausgestattet.

Beheizt wird das Apartment über eine effiziente Öl‑Zentralheizung. Gebäude und Wohnung befinden sich in einem sehr gepflegten Zustand.

Fazit: Eine charmante, frisch renovierte Wohnlösung mit Komfort, Ruhe und grüner Umgebung – ideal für Singles oder Pendler, die Wert auf einen gut geschnittenen, stilvollen Rückzugsort legen.

Ausstattung

- Baujahr 1957
- Eigentumswohnung im Bestandsbau
- großzügiger Balkon nach Südwesten ausgerichtet
- bodentiefe Fenster für viel Licht
- Wannenbad
- Küche mit viel Stauraum und allen Elektrogeräten
- Abstellraum
- Keller
- Fahrradkeller
- 1 PKW Stellplatz im Freien

Sonstige Informationen

Der Grundriss ist nicht maßstabsgerecht. Alle Angaben sind ohne Gewähr und basieren auf Informationen, die uns von unserem Auftraggeber übermittelt wurden. Alle Flächenangaben sind ca.-Werte. Wir übernehmen keine Gewähr für die Richtigkeit, Vollständigkeit und Aktualität dieser Angaben. Es obliegt daher unseren Kunden, die darin enthaltenen Objektinformationen und Angaben auf Ihre Richtigkeit hin zu überprüfen. Alle Immobilienangebote sind freibleibend und vorbehaltlich Irrtümer und Zwischenverkauf.

Für weitere Informationen sowie für Besichtigungen stehen wir Ihnen gern zur Verfügung.
Bitte haben Sie Verständnis dafür, dass wir Ihre Anfrage mit den gewünschten Informationen zur Immobilie nur dann beantworten können, wenn Sie uns Ihre Adresse mit Telefonnummer mitteilen. Vielen Dank!

Energieausweis: Verbrauchsausweis
Endenergieverbrauch: 162 kWh / (m²*a)
Baujahr lt. Energieausweis: 1957
wesentlicher Energieträger: Zentralheizung
Energieeffizienzklasse: F
Warmwasser enthalten: ja

Lage

Das Apartment befindet sich in einer gut angebundenen und zugleich ruhigen Wohngegend im Süden Berlins. Die Umgebung bietet eine ideale Mischung aus urbaner Infrastruktur und grünen Erholungsflächen.

Für Autofahrer ist die Anbindung optimal: Mehrere Hauptverkehrsstraßen sowie die nahegelegene Autobahn ermöglichen eine schnelle Erreichbarkeit des Stadtzentrums und des Berliner Umlands. Auch Parkmöglichkeiten sind in der Umgebung vorhanden.

Wer den öffentlichen Nahverkehr nutzt, profitiert von einer sehr guten Anbindung: Mehrere Bus- und U-Bahn-Linien sorgen für eine schnelle Verbindung in die Innenstadt sowie zu anderen Bezirken. Die nächste U-Bahn-Station ist fußläufig erreichbar und bietet eine direkte Anbindung an das Berliner Nahverkehrsnetz.

Freizeitmöglichkeiten sind in der Umgebung zahlreich vorhanden. Weitläufige Parks und Grünanlagen laden zu Spaziergängen, Joggingrunden oder entspannten Stunden im Freien ein. Zudem gibt es verschiedene Sporteinrichtungen, Restaurants und Einkaufsmöglichkeiten in der Nähe, die für eine hohe Lebensqualität sorgen.

Dank der ausgezeichneten Infrastruktur ist diese Lage ideal für alle, die eine gute Erreichbarkeit mit einem angenehmen Wohnumfeld verbinden möchten.

Grundschule 180 m | Realschule 5,66 km | Gymnasium 870 m | Flughafen 18 km | Fernbahnhof 3,84 km | Autobahn 2,61 km | U/S-Bahn 320 m | Zentrum 8,85 km | Bus 170 m | Einkaufsmöglichkeiten 1,94 km | Gaststätten 220 m 

Google Maps

Mit dem Laden der Karte akzeptieren Sie die Datenschutzerklärung von Google.
Mehr erfahren

Karte laden

Die dargestellte Position der Immobilie ist nur eine ungefähre Angabe.

Direktanfrage

* Pflichtangaben
 SSL-verschlüsselt
Immobiliendaten-Import und Darstellung für WordPress: WP-ImmoMakler®